4980万円 六甲シャトレ篠原
価格
4980万円
所在地
灘区篠原中町1丁目5-21
PRポイント
■月々12万円台からご購入検討頂けます
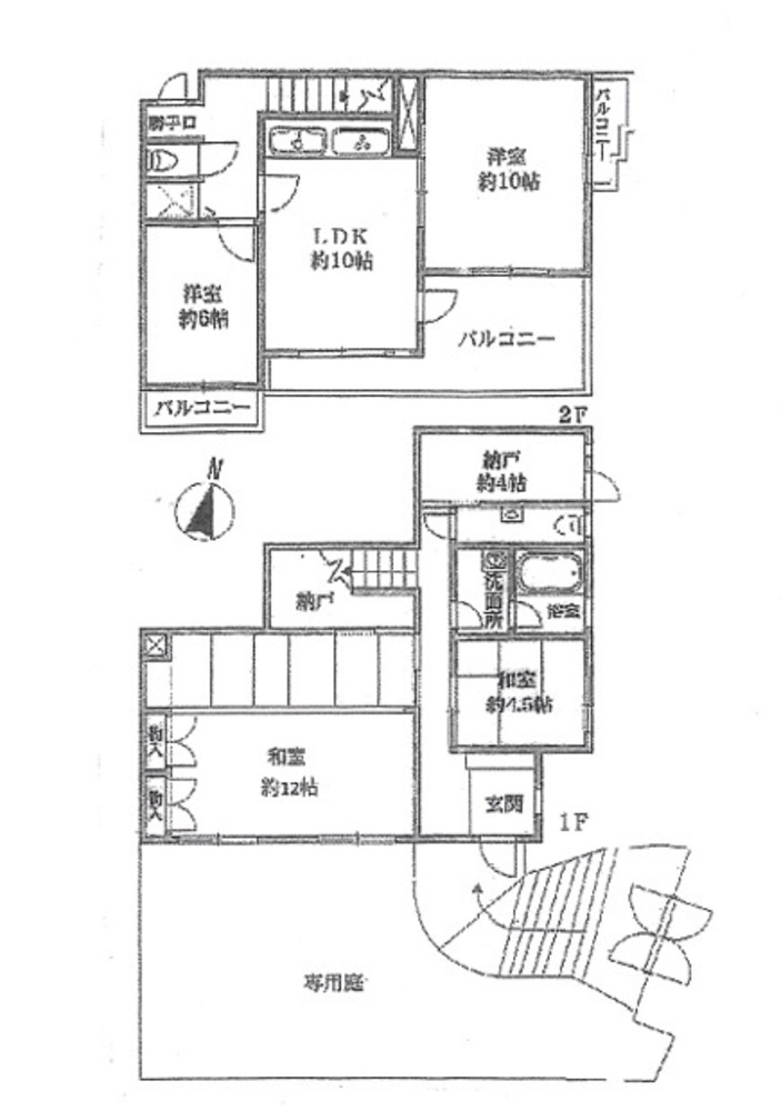
■メゾネットタイプ
■1.2階部分
■4LDK+2S
■駐車場空き有 月額20000円🚗
■駐輪場、バイク置場有
■エレベーター有
■南東向きにつき陽当り良好🌞
■専用庭使用料 月額2900円🌷
【ネットに掲載されていない物件多数有、お気軽にお問い合わせください】
♪お家の売却相談、無料査定しております
住宅ローンでお困りな方は当社へご相談を
●勤続年数が短いけれど大丈夫?
●アルバイトでもローン組める?
●住宅ローンの審査が不安なの
●貯金もないし、頭金もはらえない
●借金がたくさんあるから無理だよね?
●自営業なんだけど厳しいよね?
●高齢の方・女性の方・外国籍の方・・・など
とりあえずローン相談だけでもしたい方大歓迎です!
最寄駅





