3980万円 ルネ芦屋親王塚
価格
3980万円
所在地
芦屋市親王塚4-1
PRポイント
■月々10万円台からご購入検討頂けます
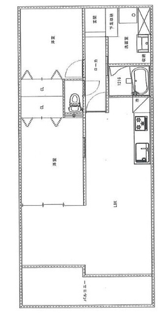
■4階部分
■2LDK
■南向き。専用ポーチ有2.61m2
■リフォーム歴有
■オートロック
~リフォーム内容~
R4年9月
システムキッチン入替
浴室入替
洗面入替
トイレ入替
R7年7月
全室フローリング貼替
■室内大変丁寧にご使用です
■徒歩圏内にて生活施設が充実しています
■利便性に恵まれた好立地
2沿線以上利用可 / スーパー 徒歩10分以内 / 市街地が近い / 内装リフォーム / 南向き / システムキッチン / 浴室乾燥機 / 陽当り良好 / 全居室収納 / 閑静な住宅地 / シャワー付洗面化粧台 / 南面バルコニー / フローリング張替 / 平面駐車場 / 温水洗浄便座 / TVモニタ付インターホン / 都市近郊 / 通風良好 / シューズインクローク / エレベーター / 駐輪場
【ネットに掲載されていない物件多数有、お気軽にお問い合わせください】
♪お家の売却相談、無料査定しております
住宅ローンでお困りな方は当社へご相談を
とりあえずローン相談だけでもしたい方大歓迎です!
最寄駅






