2280万円 北区鹿の子台北町1丁目
価格
2280万円
所在地
北区鹿の子台北町1丁目
PRポイント
□月々5万円台からご購入検討頂けます
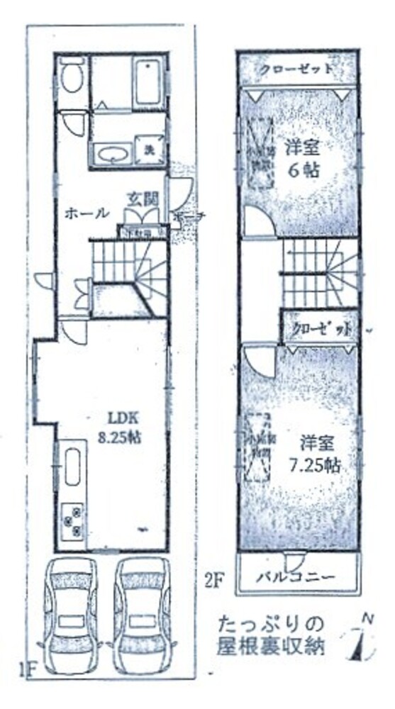
■2LDK
■R7年9月リフォーム済
■駐車2台可能(車種による)
■南東向き
□LDKにエアコン1台新調
□屋根裏収納有
□閑静な住宅街・陽当り良好
駐車2台可 / 2沿線以上利用可 / 内装リフォーム / システムキッチン / 陽当り良好 / 全居室収納 / 南側道路面す / 閑静な住宅地 / 前道6m以上 / シャワー付洗面化粧台 / 浴室1坪以上 / 2階建 / 東南向き / 南面バルコニー / フローリング張替 / 温水洗浄便座 / 浴室に窓 / 緑豊かな住宅地 / 通風良好 / 全居室フローリング / 全居室6畳以上 / IHクッキングヒーター / 都市ガス / シューズインクローク / 平坦地 / 屋根裏収納
【ネット・ホームページに掲載されていない物件多数有、お気軽にお問い合わせください】
♪お家の売却相談、無料査定しております
住宅ローンでお困りな方は当社へご相談を
●勤続年数が短いけれど大丈夫?
●アルバイトでもローン組める?
●住宅ローンの審査が不安なの
●貯金もないし、頭金もはらえない
●借金がたくさんあるから無理だよね?
●自営業なんだけど厳しいよね?
●高齢の方・女性の方・外国籍の方・・・など
とりあえずローン相談だけでもしたい方大歓迎です!
最寄駅





