2590万円 宝塚市山本東3丁目
価格
2590万円
所在地
宝塚市山本東3丁目
PRポイント
□月々6万円台からご購入検討頂けます
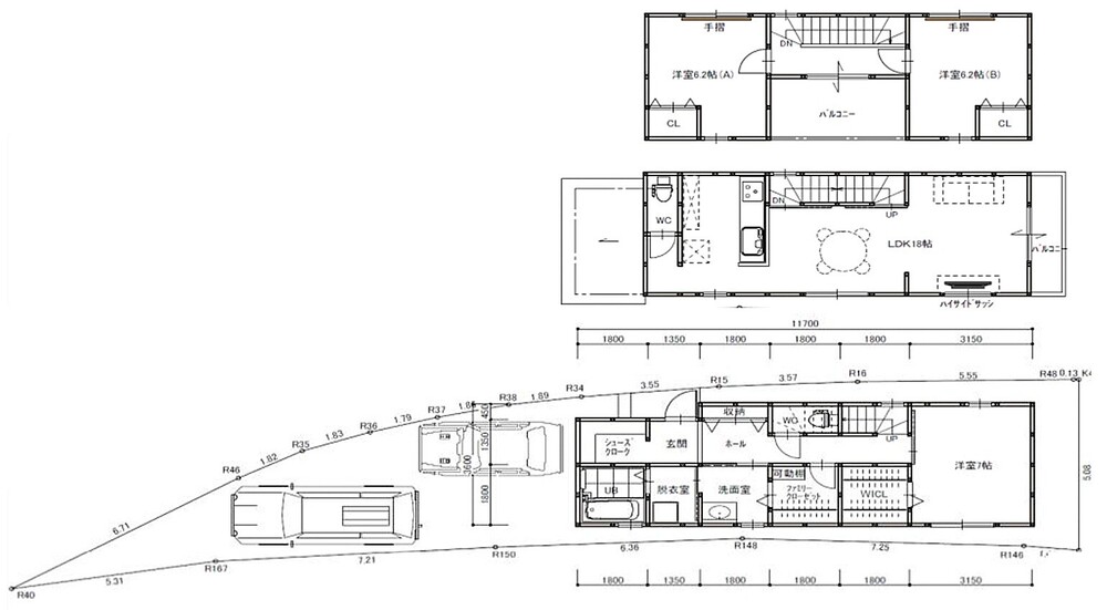
■更地、建築条件無し
■お好きなハウスメーカー・工務店にて建築可能
□アクセス:大阪や宝塚・西宮へのアクセスが良く、特に阪急宝塚線の快速急行は、山本駅が宝塚の次の停車駅であり、利便性が高いです。
□高速のインターチェンジも近くに複数あり、車での移動にも便利です。
□山本駅前には、スーパーや薬局、ハンバーガー専門店などが揃い、日常の買い物はストレスなく可能です。
□病院、消防署、交番が近くにあり、安心できる環境です。
□閑静な住宅街が多い、新しい街並みの穏やかな地域です。
□長尾小学校:徒歩9分/長尾中学校:徒歩12分
2沿線以上利用可 / 更地渡し / 即引渡し可 / スーパー 徒歩10分以内 / 市街地が近い / 陽当り良好 / 閑静な住宅地 / 前道6m以上 / 建築条件なし / 都市ガス / 小学校 徒歩10分以内 / 平坦地 / 建物プラン例有り / 周辺交通量少なめ
住宅ローンでお困りな方は当社へご相談を
とりあえずローン相談だけでもしたい方大歓迎!
最寄駅









