980万円 尼崎市神田南通2丁目
価格
980万円
所在地
尼崎市神田南通2丁目
PRポイント
□月々2万円台からご購入検討頂けます
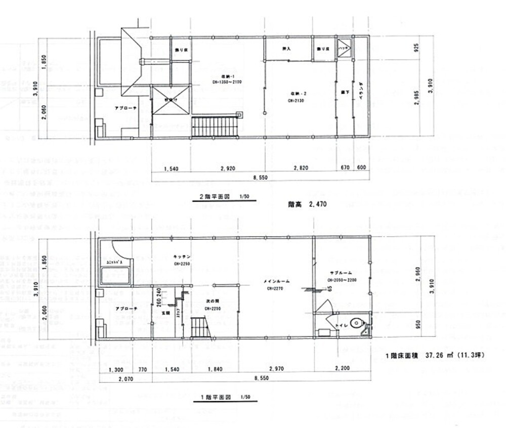
■3LDK
■2駅利用可
■閑静な住宅街・陽当り良好
■内外装一部リフォーム済
□徒歩圏内にて生活施設が充実しています
□商店街徒歩1分
□収益物件にもおすすめです
~リフォーム内容~
内装
○床・壁・天井・建具
○1階べニア貼替・クロス・クッションフロア張替・畳取替
外装
○雨漏り箇所修繕
その他
○玄関周り左管補修・分電盤・配線・コンセント取替
2沿線以上利用可 / スーパー 徒歩10分以内 / 内装リフォーム / 陽当り良好 / 駅まで平坦 / 閑静な住宅地 / 総合病院 徒歩10分以内 / 庭 / 浴室1坪以上 / 外装リフォーム / 2階建 / 浴室に窓 / 通風良好 / 都市ガス / BS・CS・CATV / 小学校 徒歩10分以内 / ルーフバルコニー / 平坦地
【ネットに掲載されていない物件多数有、お気軽にお問い合わせください】
♪お家の売却相談、無料査定しております
住宅ローンでお困りな方は当社へご相談を
とりあえずローン相談だけでもしたい方大歓迎です!
最寄駅













