1150万円 尼崎市大庄北5丁目
価格
1150万円
所在地
尼崎市大庄北5丁目
PRポイント
□月々2万円台からご購入検討頂けます
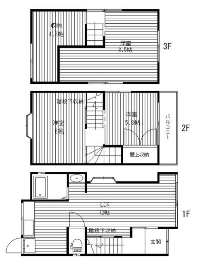
■3SLDK
■リノベーション用物件
■生活施設が充実しているので、収益物件にも最適です
□リフォームのご相談はお気軽に(*^^*)
□角地につき陽当り良好
2沿線以上利用可 / スーパー 徒歩10分以内 / 市街地が近い / 陽当り良好 / 閑静な住宅地 / 角地 / 2階建 / 浴室に窓 / 通風良好 / 全居室フローリング / 都市ガス / 小学校 徒歩10分以内 / 平坦地 / 納戸 / 周辺交通量少なめ
【ネット・ホームページに掲載されていない物件多数有、お気軽にお問い合わせください】
♪お家の売却相談、無料査定しております
住宅ローンでお困りな方は当社へご相談を
●勤続年数が短いけれど大丈夫?
●アルバイトでもローン組める?
●住宅ローンの審査が不安なの
●貯金もないし、頭金もはらえない
●借金がたくさんあるから無理だよね?
●自営業なんだけど厳しいよね?
●高齢の方・女性の方・外国籍の方・・・など
とりあえずローン相談だけでもしたい方大歓迎です!
最寄駅





