1650万円 エーベル園田・田能
価格
1650万円
所在地
尼崎市田能3丁目5-7
PRポイント
■月々4万円台からご購入検討頂けます
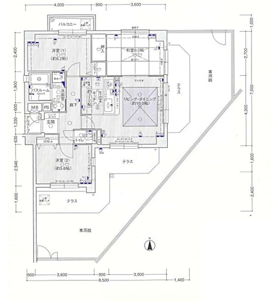
■1階部分
■3LDK
■駐車場有、南東角部屋、専用庭有
■床暖房と掘りごたつがあります
■リフォームのご相談はお気軽に(^^)/
■平坦なため、自転車での移動が非常にスムーズです
■オートロック
スーパー 徒歩10分以内 / システムキッチン / 角住戸 / 陽当り良好 / 全居室収納 / 和室 / シャワー付洗面化粧台 / 対面式キッチン / 自走式駐車場 / 浴室1坪以上 / 東南向き / 平面駐車場 / 高速ネット対応 / 温水洗浄便座 / 浴室に窓 / TVモニタ付インターホン / 通風良好 / シューズインクローク / BS・CS・CATV / 小学校 徒歩10分以内 / 平坦地 / エレベーター / テラス / 専用庭 / 宅配ボックス / 駐輪場 / バイク置場
【ネット・ホームページに掲載されていない物件多数有、お気軽にお問い合わせください】
♪お家の売却相談、無料査定しております
住宅ローンでお困りな方は当社へご相談を
とりあえずローン相談だけでもしたい方大歓迎です!
最寄駅





