tel

営業時間 10:00~19:00(水曜定休)

営業時間 10:00~19:00

(水曜定休)

営業時間 10:00~19:00(水曜定休)

property

物件一覧

中古マンション

1200万円 ジャルダン上ヶ原壱番館

価格

1200万円

所在地

西宮市上ヶ原七番町1-100

PRポイント

■月々3万円台からご購入検討頂けます
■2階部分
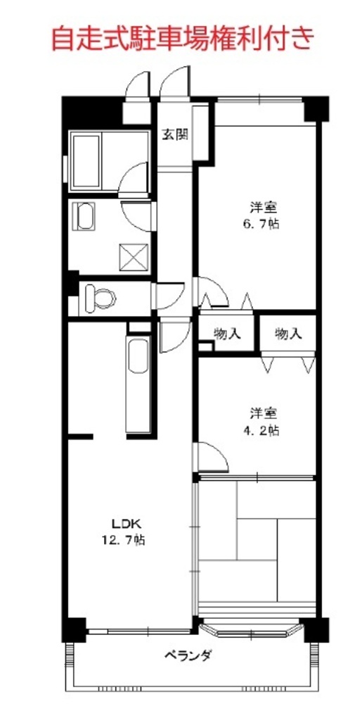
■3LDK
■角部屋、自走式駐車場権利付き
■室内大変丁寧にご使用です(*^^*)
■リフォームの際は、低予算でできそうです♪
■徒歩圏内にて生活施設が充実しています
■小学校や中学校が比較的近くにあるため、子育て世代にも人気の高いエリアです
■閑静な住宅街・陽当り良好

2沿線以上利用可 / スーパー 徒歩10分以内 / システムキッチン / 浴室乾燥機 / 角住戸 / 陽当り良好 / 駅まで平坦 / 閑静な住宅地 / 和室 / シャワー付洗面化粧台 / 自走式駐車場 / 平面駐車場 / 温水洗浄便座 / 浴室に窓 / TVモニタ付インターホン / 通風良好 / 平坦地 / エレベーター / 宅配ボックス / 駐輪場

【ネット・ホームページに掲載されていない物件多数有、お気軽にお問い合わせください】

♪お家の売却相談、無料査定しております

住宅ローンでお困りな方は当社へご相談を
とりあえずローン相談だけでもしたい方大歓迎です!

最寄駅

詳細情報

間取り
-
床面積
築年数
所在階
方角
駐車場
物件種別
中古マンション
構造
設備情報
土地面積
駐車場
土地権利
都市計画
用途地域
建ぺい率
%
容積率
%
地勢
建物面積
建物構造
ペット
取引態様
仲介手数料
現況
販売中

設備情報

備考

CONTACT

お問い合わせ

お電話・メールからお気軽にお問い合わせください。

営業時間 10:00~19:00(水曜定休)

© 2024 ソレイユホーム株式会社

ページトップ