6980万円 グランフォルム新神戸
価格
6980万円
所在地
中央区熊内町2丁目4-12
PRポイント
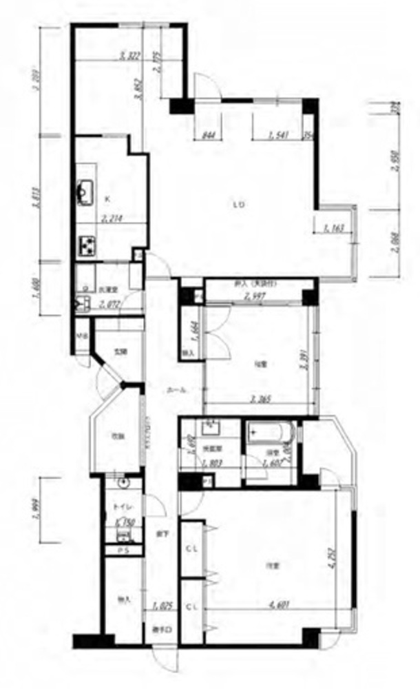
■4階部分
■2LDK
■駐車場有
■ペット飼育可
■楽器使用可
■リフォーム歴有
■ワンフロア2戸バブル期に築かれた贅沢なつくり
■北側は桜が見えるルーフバルコニー仕様
■徒歩圏内にて生活施設が充実しています
■複数沿線利用可能
■山陽新幹線「新神戸」駅:徒歩8分、出張や旅行に便利な立地です
2沿線以上利用可 / スーパー 徒歩10分以内 / 市街地が近い / 内装リフォーム / 角住戸 / 陽当り良好 / 全居室収納 / 駅まで平坦 / 閑静な住宅地 / 総合病院 徒歩10分以内 / 和室 / 自走式駐車場 / 浴室1坪以上 / 2面以上バルコニー / 南面バルコニー / 平面駐車場 / 浴室に窓 / 吹抜け / TVモニタ付インターホン / 都市近郊 / 通風良好 / 眺望良好 / 南西向き / ペット相談 / 小学校 徒歩10分以内 / ルーフバルコニー / 平坦地 / エレベーター / 宅配ボックス / 駐輪場
【ネット・ホームページに掲載されていない物件多数有、お気軽にお問い合わせください】
♪お家の売却相談、無料査定しております
住宅ローンでお困りな方は当社へご相談を
とりあえずローン相談だけでもしたい方大歓迎です!
最寄駅








